Bedrooms: 3

Bathrooms: 2 full | 1 partial

2885 SQ FTSource: Builder

187 Summit View Lane

Ellijay, GA 30540

$649,900

New Construction on Unfinished Basement Move in Ready March- $5k INCENTIVE if contract written by Feb 14th. Discover serene and charming living at The Summit at Ellijay, nestled just outside the vibrant energy of historic downtown. Embrace the perfect blend of luxury and mountain tranquility in our craftsman-style homes, each designed with captivating curb appeal and modern finishes. Enjoy breathtaking year-round mountain views from stunning lots. The heart of the home, our kitchens feature stainless steel appliances and ample space for meal preparation and social gatherings an ideal place to connect with loved ones. Retreat to the spacious owners' suite, meticulously crafted for comfort and relaxation, offering a peaceful sanctuary at day's end. With three additional large bedrooms, each boasting walk-in closets, there's plenty of space for family and guests. Step onto the deck to savor serene views a perfect spot for morning coffee or evening entertaining. Choose from slab or basement options to suit your lifestyle needs. Located just one mile from the annual Georgia Apple Festival and a scenic drive away from orchards, wineries, hiking trails, river tubing, ziplining, and Carters Lake. Conveniently situated within 90 miles of Atlanta Hartsfield-Jackson International Airport. Address not showing on maps use Summit View Drive address to locate home.

    MLS Data

  • StatusActive
  • MLS #7708803
  • TypeResidential

    Interior Details

  • Bedrooms3
  • Bathrooms2
  • Half Baths1
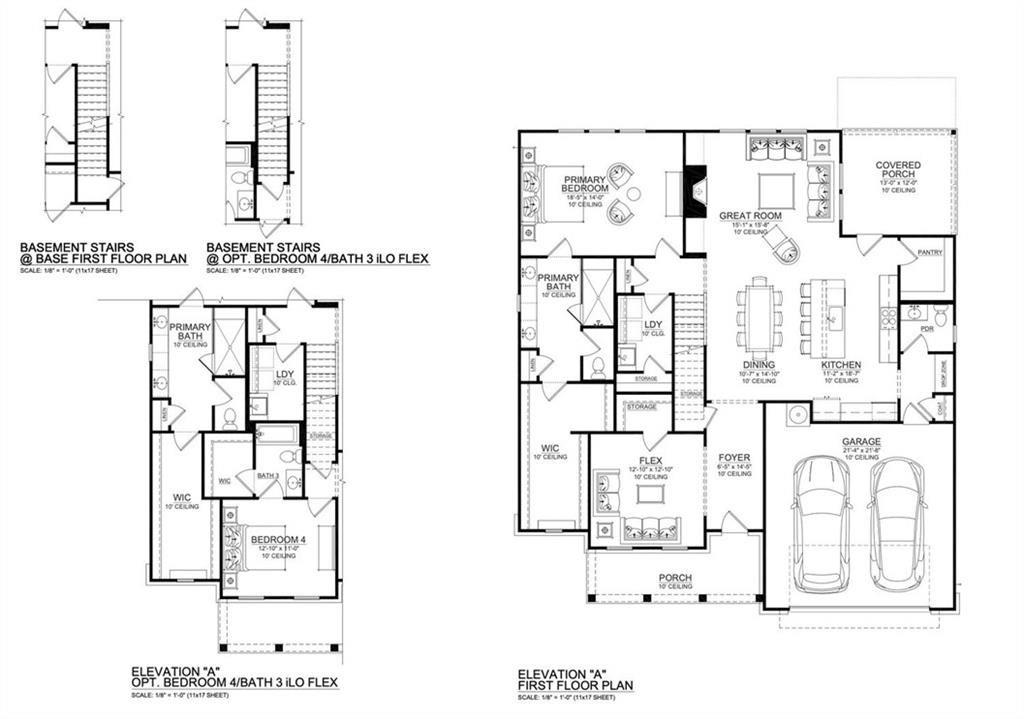
  • Bedroom DescriptionMaster on Main
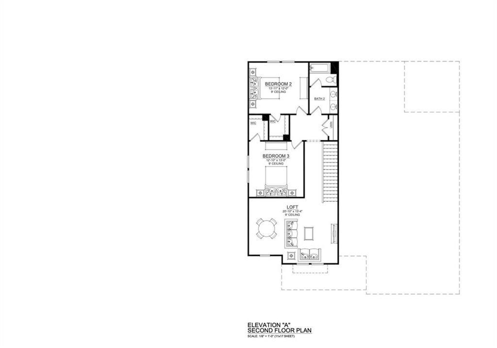
  • RoomsLoft, Office
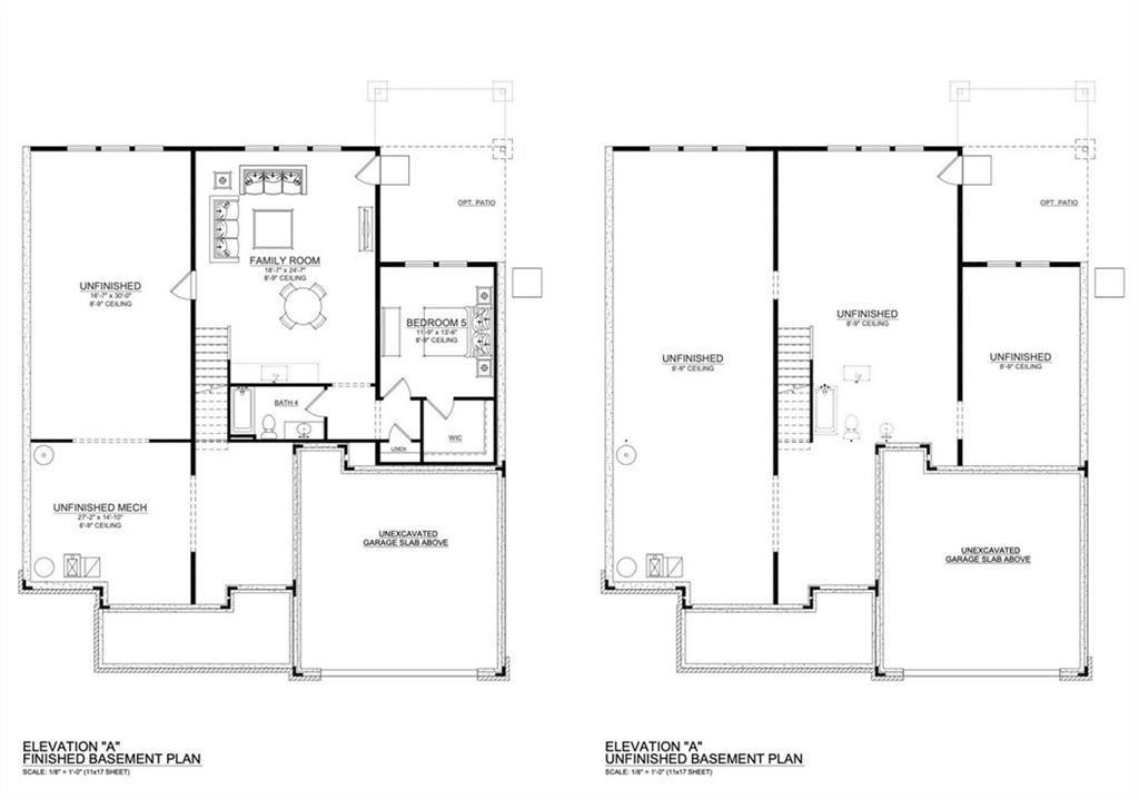
  • BasementUnfinished
  • FeaturesEntrance Foyer, High Ceilings 9 ft Main, High Ceilings 9 ft Upper, Walk-In Closet(s)
  • KitchenBreakfast Bar, Cabinets Stain, Kitchen Island, Pantry Walk-In, Stone Counters, View to Family Room
  • AppliancesDishwasher, Disposal, Gas Oven/Range/Countertop, Microwave, Range Hood
  • HVACCentral Air
  • Fireplaces1
  • Fireplace DescriptionFamily Room, Gas Log, Great Room

    Exterior Details

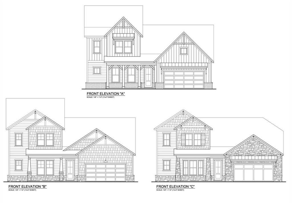
  • StyleCraftsman
  • ConstructionConcrete, HardiPlank Type
  • Built In2026
  • StoriesArray
  • ParkingAttached, Garage Door Opener, Driveway, Garage, Garage Faces Front
  • UtilitiesElectricity Available, Phone Available, Water Available
  • SewerPublic Sewer
  • Lot DescriptionSteep Slope, Wooded
  • Acres0.2

Listing Provided Courtesy Of: Harry Norman Realtors 404-495-8331

First Multiple Listing ServiceListings identified with the FMLS IDX logo come from FMLS and are held by brokerage firms other than the owner of this website. The listing brokerage is identified in any listing details. Information is deemed reliable but is not guaranteed. If you believe any FMLS listing contains material that infringes your copyrighted work please click here to review our DMCA policy and learn how to submit a takedown request. © 2026 First Multiple Listing Service, Inc.

This property information delivered from various sources that may include, but not be limited to, county records and the multiple listing service. Although the information is believed to be reliable, it is not warranted and you should not rely upon it without independent verification. Property information is subject to errors, omissions, changes, including price, or withdrawal without notice.

For issues regarding this website, please contact Eyesore at 678.692.8512.

Data Last updated on April 16, 2026 1:55pm


Request Information